Генплан
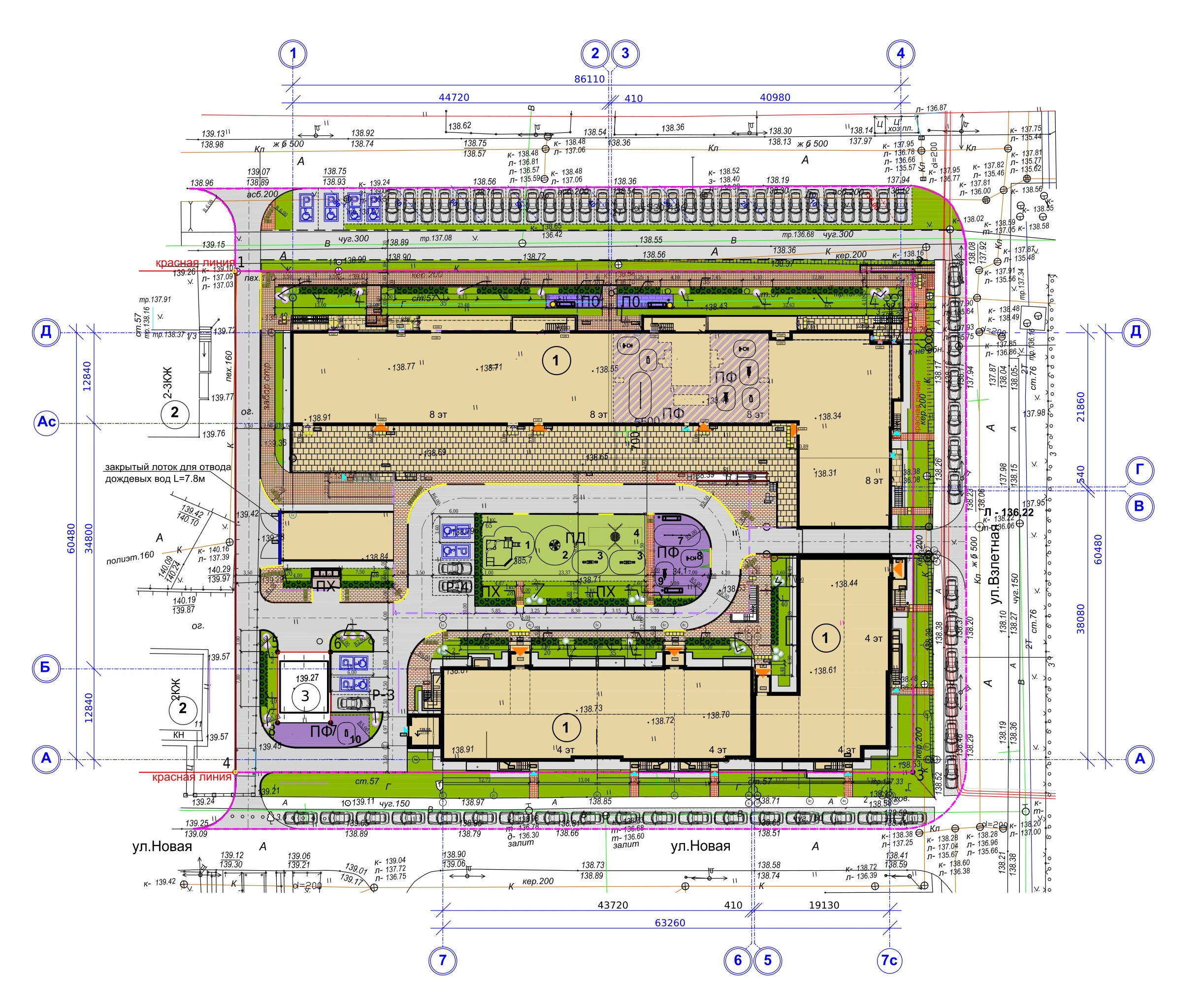
Земельный участок с кадастровым номером 69:40:02:00:106:1643, площадью 6741,0 м2, расположен в Московском районе г. Твери, по улице Новая, д.13
Территория ЖК ограничена с севера ул. Вологодская, с юга – ул. Новая, с востока ул. Взлётная, с запада – территорией земельных участков индивидуальных жилых домов по ул. Мирная, где располагаются 2-3 этажные индивидуальные жилые дома.
Ситуационный план
В соответствии с генеральным планом города Твери участок расположен в жилой зоне – застройка до 16 этажей. Основной подъезд запроектирован с улиц Вологодская и Новая.
В пределах пешеходной доступности: магазины, общеобразовательная школа и другие объекты обслуживания населения.
ФОК им. С.Ахмерова (физкультурно – оздоровительным комплексом для школьников, молодёжи и населения).
Преимущества
ЖК «Уютный Дом»: там, где ваши амбиции встречаются с комфортом. Прогуляйтесь по Мирным улицам вашего нового района.
- Индивидуальное отопление
- Малоэтажная застройка, 4-6-8 этажей
- Подземный паркинг на 50 машино мест
- Тихий район с хорошей транспортной доступностью
- Школа и детский садик через дорогу
- Парк, спорткомплекс, роддом, женская консультация
ЖК в цифрах
- Площадка для отдыха жителей ЖК – 32м2;
- Детская площадка для игр детей дошкольного и младшего школьного возраста –223 м2;
- Площадка для занятий физкультурой – 138 м2 на территории ЖК;
- Тренажерная площадка 180м2 на крыше секции №3;
- 73 м/м - стоянки (парковки) автотранспорта для жителей на дворовой территории ЖК;
- 8 м/м - специализированных расширенных машино-мест для транспортных средств инвалидов, передвигающихся на кресле-коляске;
- 51 м/м - В подземном паркинге с лифтом под жилым домом.
Опираясь на традиции, внедряем инновации
Наша организация занимается строительством уже 35 лет.
Мы построили более ста объектов в Твери и Тверской области.
Директор ООО «ПСФ «Квартал» — Савин И.В.
Старт продаж квартир в строящихся 4, 5, 6 секциях
- 4 секция,
- 5 и 6 секция